石灰石礦安全小平台開采方案 1∵石灰石礦的基本現狀與概況 石河子南山水泥廠石灰石礦位於沙灣縣境內的寧家河......
為貫徹落實“安全第一、預防為主、綜合治理”的安全生產方針和六枝特區安全生產委員會下發的《關於全麵開展全區煤礦安全生產......
水、火、瓦斯、煤塵、頂板事故的處理措施 4.1、井下水災事故的處理: 4.1.1井下突然發生透水事故時,......
預防水、火、瓦斯煤塵、頂板、運輸事故的預防措施 3.1∵井下水災事故的預防措施: 發生水災的水源有地麵水......
***煤礦關閉安全技術措施 二〇......
煤礦水泵聯合試運轉報告 根據《煤礦安全規程》第二百七十八條的有關要求,礦井必須有工作水泵、備用水泵、檢修水泵。水泵......
根據《省能源局關於取消整合技改煤礦保留一套獨立生產係統的通知》(黔能源發[2010]451號)精神,整合、技改煤礦......
礦井防止粉塵汙染安全技術措施 根據《煤礦安全規程》和綜合防塵安全質量標準及上級有關要求,結合我礦實際情況,為徹......
防止礦井噪音汙染安全技術措施 噪聲是汙染礦山環境的公害之一,而礦井作業人員所受危害更大,會引發多種疾病,並使井......
防止礦井空氣汙染安全技術措施 煤礦中各種有害氣體,通常都在通風不良的舊巷、采空區和火區附近以及在炮煙、沼氣和煤......
一、防止礦井空氣汙染措施 煤礦中各種有害氣體,通常都在通風不良的舊巷、采空區和火區附近以及在炮煙、沼氣和煤塵爆......
目∵錄 前∵言∵1 第一章∵企業安全生產現狀∵2 第二章∵安全生產存在的問題∵12 第三章∵......
不同的水質需要在軋製油進行不同的設計,以保證乳化液的穩定性。對於連軋機組,為了充分發揮軋製油的性能,一般對水質要求較高。......
《職工安全技術培訓教材》編委會 主∵任:楊德彬 副主任:李法柱∵張遠征∵杜新孔∵孫啟華 主∵編:李......
為什麼要設計這樣的中央供電硐室的位置與人員操作潛水泵的中央排水硐室和裝水倉回風眼防範的安全改造立體設計 ......
裝水倉回風眼的安全設計 現在的煤礦井下設計施工使用的中央排水硐室的回風都是直接進入總排回風巷道,如......
裝水倉回風眼的安全隱患 過去的煤礦井下設計施工使用的裝水倉的回風眼沒有獨立的回風係統,都是在中......
人員操作潛水泵的中央排水硐室安全設計 現在的煤礦井下設計施工使用的平巷巷道,都是上層回風皮帶巷道,下層入風、......
中央排水硐室的安全隱患 過去的煤礦井下設計施工使用的中央排水硐室都設在入風、下料井底大巷車場子側......
井下使用相機拍照安全技術措施 一、工作時間:2012年∵月∵日∵時-∵時 二、工作內容:井下使用照相機拍......
韋家溝煤礦避難硐室隔離門施工方法 韋家溝煤礦∵李磊 摘∵要:文章介紹了韋礦-320m避難硐室隔離門的施工......
東采區舊巷與上部采區聯通,上部采區湧水較大,影響本區。按照疏放水原則,決定對該處施工防水閘門。為安全施工特編製如下......
道路北側山體錨網噴護坡施工方案 一、概況 炭窯峪煤業有限公司辦公樓後道路北側山體岩石較為破碎開挖坡度為7......
井底車場中央水倉淤泥清理安全技術措施 總工程師 安∵監∵科 調∵度∵室 機∵電∵科 生......
綜采工作麵液壓支架回撤安全措施 ,∵為使901綜采工作麵安全出口達到規程規定高度,滿足通風需求。經礦領導決定將......
一、工作原則 目前正值雨季時節,根據國家關於煤礦必須製定防洪、防雷電、防排水安全技術措施的規定,確保雷雨......
釘道整道安全技術措施1.∵開工前,首先檢查所用工具是否齊全、完好。2.∵工作前,施工負責人要先檢查施工點的安......
斜巷處理掉道車輛安全技術措施 1、斜巷車輛掉道,信把工要及時發停鉤信號,絞車司機立即停車。 2、絞車司機......
目∵錄1.工程概況…………………………………………………………52.編製依據………………………………………………......
ZMK127(Y)型電液全自動控製風門操作規程及注意事項 ●自動狀態 兩道風門兩端的巷道壁上分別安裝紅外......
根據礦生產安排,準備一區負責施工4603上巷臨時避難硐室。依據《煤礦安全規程》、《煤礦井下緊急避險係統建設管理暫行......
煤礦井下緊急避險係統應急措施 礦井發生事故後,根據井下實際情況由救援指揮中心統一指揮,及時啟動應急......
煤礦井下緊急避險係統設備故障處理期間安全措施 1.∵加強緊急避險係統專職維護、維修人員對緊急避險係統、管......
目∵錄 一、工程概況...................................................
冬雨季施工措施及地下管線等保護加固措施 一、冬雨季施工措施 1、進入冬季施工的工程項目,在進入冬季前應組......
文明施工及環境、職業健康保證措施 一、文明施工及環境管理措施 1、組織領導 項目經理部成立以項目......
施工技術安全措施、災害預防和安全保證體係 一、安全工作目標 堅持“安全第一、預防為主”的方針,認真貫......
施工質量標準及質量保證措施 一、采用的質量標準及質量管理目標 1、質量目標: ......
施工進度計劃及保證措施 一、工期安排 總工期78天。 二、工期保證措施......
專項安全技術措施編製要求 2007.08(試行) 一、專項安全技術措施,由施工單位的工程技術人員根據施工......
井下大巷整理方案 為了搞好城郊煤礦機電運輸安全質量標準化工作,促進礦井安全生產,以精細化管理為抓手,提高我礦機......
今年是繼續深化“安全生產年”活動關鍵年,根據省、市安監局關於2012年非煤礦山安全生產監管工作要求,結合麒麟區非煤礦......
圪柳溝煤礦地麵、機電安全排查通報 五月十一、十二兩天,神木縣煤炭安全監察部門,礦項目監理不與礦方分別組成聯合檢查組......
神火九華山礦業主井防凍工程施工安全技術措施 一、施工內容 由於我礦以主井作為進風井,當進入冬季時周圍氣溫......
機電一隊副井冬季因氣溫下降結冰除冰措施 施工時間:∵結冰需處理時 施工負責人:邱萬裏∵聶書民 措施......
淮北礦業(集團)有限責任公司 煤礦常用專項設計及安全技術措施編製大綱(試行) 二〇一〇年六月 說∵......
一般規定 1.認真執行《煤礦安全規程》,嚴禁違章指揮、違章作業。 2.每一名職工必須經過培訓,未經培訓,......
***煤礦安全生產許可證直接延期現場複核工作方案 鄂爾多斯監察分局 ****年**月**日 你礦《......
赫章縣威奢煤礦 環境影響報告書(簡本公示) 赫章縣威奢煤礦(建設規模:15萬t/a)環境影響報告書簡本......
照明、信號與通訊安裝標準 1、一般要求 1.1主要提升運輸傾斜井巷或絞車滾筒在∵1.2m及以上串車提升、......
煤礦井下泵房管道安裝的標準和方法 泵房管道安裝 (1)排水管安裝: 1)每台水泵應能分別向兩條主排......
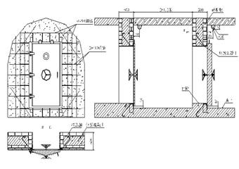
煤礦井下泵房防水門的要求 吸入式或壓入式泵房在與井底車場相通的出入口處,應設置密閉的防水門,並使其關閉自如。防......
神木縣隆德礦業有限責任公司 隆德煤礦井下作業人員管理係統技術方案 重慶梅安森科技股份有限公司 20......
富源縣富村鎮碗底煤礦 安全風險預警防控實施方案 富源縣富村鎮碗底煤礦 2011年9月12日 ......
鬆樹溝煤礦井下安全避險“六大係統”預驗收報告 義縣鬆樹溝煤礦 2011年12月18日 目∵錄 ......
義縣鬆樹溝煤礦井下安全避險“六大係統”預驗收報告 第一節∵礦井概況 一、地理位置及井田境界 義縣鬆......
納雍縣安家寨煤礦上級檢查隱患 整改方案 二0一二年四月五日納雍縣瓦斯治理和防突專家會診組對我礦井上、下進......
富源縣富村鎮碗底煤礦 安 全 風 險 預 警 防 控 實 ......
昌興煤炭下屬煤礦土地複墾施工方案 甘肅省民勤縣昌興煤炭有限責任公司煤礦位於民勤縣西北直距110公裏處,西南距山......
內部資料 注意保密 礦業權評估操作手冊(參考) 2004年4月 前∵言 為了開拓公司礦......
打開手機掃描上麵的二維碼
万博全网站
Powered By煤礦安全生產網徐州網狐網絡科技有限公司
新手上路
免費注冊
熱點資訊
網付優惠
支付方式
平台支付
網銀支付
現金支付
關於我們
關於資訊
資訊優勢
聯係我們
商業合作
商家資訊
廣告投放
投稿須知
使用手機軟件掃描微信二維碼
關注我們可獲取更多熱點資訊
感謝網狐天下友情技術支持